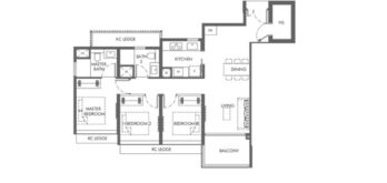
THE HILL Floor Plan

Click the button above to view & download The Hill Floor Plan.
Book An Appointment to view The Hill ShowFlat & get VVIP Discounts (Limited Time), Direct Developer Price, & Hardcopy E-Brochure. Guaranteed with Best Price Possible.
OR
Fill up the form on the right and get a copy of The Hill @ One North Price, E-Brochure, and Latest Updates!
Strictly no spam policy.




















